kivikatus24.ee kivikatus24.ee
  • Otsige pood

    Kivikatus24 OÜ

    Peterburi tee 34/1, 11415 Tallinn, Eesti

    E-pood

    E-P:
    24h

    Tiilikatto24 OY

    Metsäkyläntie 4, 01800 Nurmijärvi, Suomi

    Myymälä

    Ma-Pe:
    7:00 - 16:30

Avatud kuni 19
  • Kontaktinfo
  • Tellimuse jälgimine
Login / Registreeri
kivikatus24.ee kivikatus24.ee
  • Katusetooted
    • Aluskatted- tihendid
      • Aluskattekiled
        • Hingav aluskate
        • Mittehingav aluskate
        • Bituumen aluskate
        • Päikesepaneeli aluskate
        • Tuuletõkkekangas
      • Läbiviigutihendid
        • Aluskatterõngas
        • Aurutõkketihend
        • Toru läbiviik
        • PVC-tihendid
      • Tihendid
        • Teip
        • Katuseliim
        • Harjatihend
        • Neeluplekitihend
        • Tihenduslint
        • Korstnatihend
        • Hüdroisolatsioon
        • Heliisolatsioon
      • Katuse kaitse
        • Linnutõke
        • Tuulutusroov
        • Putukavõrk
        • Ventileeriv lint
      • Katusehooldus
        • Katusepesu vahendid
        • Kivikatuse värv
        • Parandusvärv

      Parimad aluskatted -25%

      12 Nov - 22 Nov

      To Shop
    • Katused
      • Betoonist katusekivi
        • Aerlox Protector+
        • Benders Carisma
        • Benders Exklusiv
        • Benders Palema
        • Zanda Cisar
        • Jönåker
        • Tegalit
        • Teviva
        • Est-Stein Protector
      • Looduskivid
        • Kiltkivi Rathscheck
        • Kiltkivi Pizvegoro
      • Keraamiline katusekivi
        • Turmalin
        • Rubin 13V
        • Granat 13V
        • Nova
        • Nortegl
        • Vittinge
        • Højslev
        • Hansa
        • Mondo 15
      • Terrassikatus
        • Icopal valgusplaat
        • Läbipaistev katusekivi
      • Bituumenkatused
        • Bituumensindel
        • Harja-räästaplaat
        • Neelukatted
        • Tihevuukkate
        • Lamekatus
        • Haljaskatus
        • Katusekaevud
        • Parapetilehter
      • Teraskatused
        • Katuseplekk
        • Harjaplekk
        • Neeluplekk
        • Ääreplekk

      Teviva- fassaad ja katus ühes tootes

      12 Nov - 22 Nov

      To Shop
    • Katuse turvatooted
      • Turvatooted
        • Lumetõkked
        • Võrklumetõkked
        • Katusesillad
        • Katuseaste
        • Turvakonks
        • Turvasiin
        • Turvaköie kinnitus
      • Redelid
        • Seinaredel
        • Katuseredel
        • Redelitugi
        • Turvarööpad
        • Seljakaared
        • Katusepiirded
      • Evakuatsioon
        • Turvaredel
        • Kõrvaleastumistoru
      • Katusepollarid
        • Keevitatav pollar
        • Valatav pollar
        • Plekkkatuse pollar
        • Kinnitusaas

      Seinaredel Orima -25%

      12 Nov - 22 Nov

      To Shop
    • Katuse ventilatsioon
      • Õhuvahetus
        • Alarõhutuulutid
        • Katuseventilaator
        • Seinaelement
        • Väljapuhketorud
        • Kanalituulutus
        • Värskeõhuklapp
        • Õhuvõtutorud
        • Tuulutustorud
      • Katuseläbiviigud
        • Antenniläbiviik
        • Katuseluuk
        • Läbiviigukivi
        • Solar läbiviik
        • Tuulutuskivi
        • Tuulutuskork
      • Ventilatsiooni tarvikud
        • Juhtpaneel-andurid
        • Ventilaatori regulaatorid
        • Remondikomplekt
        • Vihmamütsid
      • Kanalisüsteemid
        • Ühendustorud
        • Ventilatsioonikanal

      VILPE - SUUR VALIK ventilatsioonitooteid -25%

      12 Nov - 22 Nov

      To Shop
    • Moodulkorstnad
      • Moodulkorstna komplekt
        • Isokern moodulkorsten
        • Rondo Plus moodulkorsten
        • Hoch moodulkorsten
        • Eco moodulkorsten
      • Ventilatsioon
        • Schiedel ventilatsiooniplokk
        • Fibo ventilatsiooniplokk
      • Metallkorstnad
        • ICS Schiedel
        • Saunakorsten
        • Permeter Smooth
      • Korstna läbiviik
        • Metallkorstna läbiviik
        • Plokk-korstna läbiviik
      • Aiakamin
        • Aiakaminad
      • Korstnatarvikud
        • Korstnaplokk
        • Isolatsioon
        • Keraamiline toru
        • Tahmaluuk
        • Suitsusiiber
        • Vihmamüts
        • Liimsegud
        • Konsoolid
        • Korstna kinnitus

      Rondo Plus moodulkorsten garantii 30a

      12 Nov - 22 Nov

      To Shop
    • Kinnitustarvikud
      • Katuseklambrid
        • Katusekivi klamber
        • Harjakivi klamber
        • Harjaroovi klamber
        • Lõigatud kivi klamber
        • Neelupleki klamber
      • Päikesekatus
        • Päikesepaneel
        • Solar inverter
        • Akusüsteem
        • Solarkaablid
        • Kinnitustarvikud
      • Kruvid
        • Katusekruvid
        • Konstruktsioonikruvi
        • Plekikruvid
        • Betoonikruvid
        • Kergbetoonikruvid
        • Puidukruvid
        • Muud kruvid
      • Katusenaelad
        • Püstolinael
        • Ankrunael
        • Papinael
        • Muud naelad
      • Kinnitusvahendid
        • Poldid
        • Mutrid
        • Seibid
        • Kiilankur
        • Tüübel
        • Tõmbeneet

      Essve puidukruvi- KIIRE JA TURVALINE

      12 Nov - 22 Nov

      To Shop
    • Katuseaknad
      • Velux katuseaknad
        • Velux Standard
        • Velux Standard+
        • Velux Premium
        • Lamekatuseaken
        • Päikesetunnel
        • Kald -ja vertikaalaknad
        • Katuseterrass
        • Rõdusüsteem
      • Suitsuluuk
        • Suitsueemaldusaken
        • Katuseaken-suitsuluuk
        • Juhtpuldid
        • Kontrollkeskus
        • Muud lisatarvikud
      • Paigaldustooted
        • Katuseakna veeplekid
        • Katuseakna kardinad
        • Katuseakna putukavõrk
        • Välised aknakatted
        • Katuseakna tarvikud
        • Nutikodu lahendused

      VELUX KATUSEAKNAD - rohkem valgus, värsket õhku ja avarust.

      12 Nov - 22 Nov

      To Shop
    • Vihmaveesüsteemid
      • Vihmaveerennid
        • Ümar vihmaveesüsteem
        • Kandiline vihmaveesüsteem
        • Peidetud vihmaveesüsteem
        • Vihmaveerenni tarvikud
      • Betoonist vihmaveetooted
        • Betoonist vihmaveerenn
        • Vihmaveepüüdja
      • Jäätumiskaitse
        • Tash kaabel
        • Optiheat kaabel

      Ruukki vihmaveelahendus kõigile katusetüüpidele

      12 Nov - 22 Nov

      To Shop
    • Leiunurk
  • Projektimüük
  • Pakkumised
  • Tarne
  • Kalkulaator
  • Hinnapäring
0 Soovide nimekiri
0 Võrdle
0 items 0.00 €
Menüü
Login / Registreeri

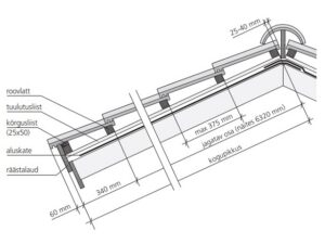
Kivikatus24: kivikatuse roovisammu arvutus

author-avatar Rainer9
Kivikatuse ehitus
16/03/2026
16 märts 2026

Kivikatus – roovitus, roovisamm ja paigaldusjuhend

Kivikatus on üks vastupidavamaid katusekatteid, mille eluiga võib ulatuda üle 50 aasta. Katusekivide korrektne paigaldus sõltub aga suu...
Loe edasi

Kivikatus24

Rainer Hartikainen – katust ei ehita ainult aastate kogemuste, vaid ka õigete otsuste põhjal, mis ühendavad praktilise kogemuse ja tänapäevased teadmised.

  • Peterburi tee 34/1, 11415 Tallinn, Eesti
  • +372 56 26 3773
  • info@kivikatus24.ee

Kauplused

  • Soome
  • Eesti

Kasulikud lingid

  • Blogi
  • Privaatsuspoliitika

Ettevõte

  • Kontaktinfo
  • Müügitingimused

Sosiaalinen media

© 2025 - Teemant
Sulge
  • Menüü
  • Katusetooted
  • Aluskatted- tihendid
  • Katused
  • Katuse turvatooted
  • Katuse ventilatsioon
  • Moodulkorstnad
  • Kinnitustarvikud
  • Katuseaknad
  • Vihmaveesüsteemid
  • Leiunurk
  • Projektimüük
  • Pakkumised
  • Tarne
  • Kalkulaator
  • Hinnapäring
  • Soovide nimekiri
  • Võrdle
  • Login / Registreeri
Ostukorv
Sulge
Login
Sulge

Unustasid parooli?

Sul ei ole kontot?

Loo konto
Vali kategooria
  • Vali kategooria
  • Aluskatted- tihendid
    • Aluskattekiled
      • Aurutõkkekile
      • Bituumen aluskate
      • Hingav aluskate
      • Mittehingav aluskate
      • Päikesepaneeli aluskate
      • Tuuletõkkekangas
    • Katuse kaitse
      • Linnutõke
      • Putukavõrk
      • Tuulutusroov
      • Ventileeriv lint
    • Katusehooldus
      • Katusepesu vahendid
      • Kivikatuse värv
      • Parandusvärv
    • Läbiviigutihendid
      • Aluskatterõngas
      • Aurutõkketihend
      • PVC tihendid
      • Toru läbiviik
    • Tihendid
      • Harjatihend
      • Hüdroisolatsioon
      • Katuseliim
      • Korstnatihend
      • Neeluplekitihend
      • Teip
      • Tihenduslint
  • Katuse turvatooted
    • Evakuatsioon
      • Kõrvaleastumis-toru
      • Turvaredel
    • Katusepollarid
      • Pollarikaelus
    • Redelid
      • Katuseredel
      • Redeli raam
      • Redelitugi
      • Seinajalad
      • Seinaredel
      • Turvarööpad
      • Ülakaared
    • Turvatooted
      • Katuseaste
      • Katusesillad
      • Lumetõkked
      • Turvaköie kinnitus
      • Turvakonks
      • Turvasiin
      • Võrklumetõkked
  • Katuse ventilatsioon
    • Kanalisüsteemid
      • Ühendustorud
    • Katuseläbiviigud
      • Antenniläbiviik
      • Kanalituulutus
      • Katuseluuk
      • Läbiviigukivi
      • Solar läbiviik
      • Tuulutuskivid
    • Õhuvahetus
      • Alarõhutuuluti
      • Õhuvõtutorud
      • Seinaelement
      • Tuulutuskork
      • Tuulutustorud
      • Väljapuhketorud
      • Värskeõhuklapp
      • Ventilaatorid
    • Ventilatsiooni tarvikud
      • Juhtpaneel-andurid
      • Remondi-komplekt
      • Ventilaatori regulaatorid
      • Vihmamütsid
  • Katuseaknad
    • Katuseaken
      • Lamekatuseaken
      • Päikesetunnel
      • Rõdusüsteem
      • Velux Premium
      • Velux Standard
      • Velux Standard+
    • Paigaldustooted
      • Juhtpuldid
      • Katuseakna kardinad
      • Katuseakna putukavõrk
      • Katuseakna tarvikud
      • Katuseakna veeplekid
      • Kontollkeskus
    • Suitsueemaldusaken
    • Suitsuluuk
      • Katuseaken-suitsuluuk
  • Katused
    • Betoonist katusekivi
      • Aerlox Protector+
      • Baltic Cisar
      • Benders Carisma
      • Benders Exklusiv
      • Benders Mecklenburger
      • Benders Palema
      • Est-Stein Elegant Plus
      • Est-Stein Protector
      • Evo
      • Jönåker Protector
      • Tegalit
      • Teviva
      • Zanda Cisar
      • Zanda F Pluss
    • Bituumenkatus
      • Bituumensindel
      • Haljaskatus
      • Harja-räästaplaat
      • Katusekaev
      • Lamekatus
      • Neelukatted
      • Parapetilehter
      • Tihevuukkate
    • Keraamiline katusekivi
      • Actua 10
      • Alegra 9
      • Bergamo
      • Datura
      • Francouzska 12
      • Granat 13V
      • Hansa
      • Højslev
      • KDN VH
      • Madura
      • Mondo 15
      • Nortegl
      • Nova
      • Opal
      • Orea 9
      • Piibrisaba
      • Planoton 11
      • Pottelberg 301
      • Romanska 12
      • Rubin 13V
      • Sensaton 11
      • Sinus
      • Tradi 12
      • Turmalin
      • VHV Vario
      • Vittinge
    • Looduskivid
      • Kiltkivi Pizvegoro
      • Kiltkivi Rathscheck
    • Teraskatused
      • Ääreplekk
      • Harjaplekk
      • Katuseplekk
      • Liiteplekk
      • Neeluplekk
      • Tilgaplekk
    • Terrassikatus
      • Icopal valgusplaat
      • Läbipaistev katusekivi
  • Kinnitustarvikud
    • Katuseklamber
      • Harjakivi klamber
      • Harjaroovi klamber
      • Katusekivi klamber
      • Lõigatud kivi klamber
      • Neelupleki klamber
      • Terrassikatuse klamber
    • Katusenaelad
      • Ankrunael
      • Papinael
      • Püstolinael
    • Kinnitustooted
      • Poldid
      • Seibid
      • Tüübel
    • Kruvid
      • Katusekruvid
      • Konstruktsiooni-kruvi
      • Plekikruvid
    • Päikesekatus
      • Kinnitustarvikud
  • Leiunurk
  • Moodulkorstnad
    • Aiakaminad
    • Korstna läbiviik
      • Metallkorstna läbiviik
      • Plokk-korstna läbiviik
    • Korstnatarvikud
      • Isolatsioon
      • Keraamiline toru
      • Konsoolid
      • Korstna kinnitus
      • Korstnaplokk
      • Liimsegud
      • Suitsusiiber
      • Tahmaluuk
      • Vihmamüts
    • Metallkorstnad
      • ICS Schiedel
      • Permeter Smooth
      • Saunakorsten
    • Moodulkorsten
      • Hoch moodulkorsten
      • Isokern moodulkorsten
      • Lava Eco moodulkorsten
      • Rondo Plus moodulkorsten
    • Ventilatsioon
      • Schiedel ventilatsioon
  • Vihmaveesüsteemid
    • Vihmaveerennid
      • Vihmavee tarvikud
      • Vihmaveerennid kandiline
      • Vihmaveerennid ümar
Popular requests:
  • Aluskate
  • Betoonist katusekivi
  • Isokern komplekt
  • Väljapuhketoru
  • Katuseaste
  • Katuseaknad
Privaatsuspõhimõtete haldamine

Kivikatus24 veebileht kasutab küpsiseid, et pakkuda parimat kasutuskogemust meie veebilehel, tuvastada korduvaid külastusi ja eelistusi ning mõõta ja analüüsida liiklust. Nõustudes kõigi või mõnede meie küpsistega, lubate meil analüüsida kasutajate käitumist, pakkuda sotsiaalmeedia funktsioone ning jagada seda teavet meie reklaami- ja analüüsipartneritega, mis aitab esitada teile teie huvidele vastavaid reklaame ja sisu.

Vajalikud küpsised Always active
Rangelt vajalikud küpsised veebisaidi toimimiseks ja neid ei ole võimalik meie süsteemides välja lülitada. Need on tavaliselt määratud ainult vastuseks teie teenuse taotlemisega seotud tegevustele, nagu privaatsuseelistuste seadistamine, sisselogimine või vormide täitmine. Saate seadistada oma brauseri neid küpsiseid blokeerima või teid hoiatama, kuid mõned saidi osad ei pruugi sel juhul toimida.
Preferences
The technical storage or access is necessary for the legitimate purpose of storing preferences that are not requested by the subscriber or user.
Analüütikaküpsised
See veebileht kasutab Google Analyticsit anonüümse teabe kogumiseks, näiteks lehe külastajate arvu ja populaarseimate sirvitavate lehtede kohta. Need aitavad meil teada saada, missugused lehed on kõige rohkem ja vähem populaarsed ning vaadata, kuidas külastajad veebisaidil ringi liiguvad. Kogu teave, mida need küpsised koguvad, on koondatud ja seega anonüümne. Kui te ei luba neid küpsiseid, ei tea me, millal olete meie veebisaiti külastanud. The technical storage or access that is used exclusively for anonymous statistical purposes. Without a subpoena, voluntary compliance on the part of your Internet Service Provider, or additional records from a third party, information stored or retrieved for this purpose alone cannot usually be used to identify you.
Reklaamiküpsised
Reklaamiküpsised on meie lehele määranud meie reklaampartnerid. Need ettevõtted võivad kasutada neid küpsiseid teie huvide profiili loomiseks ja asjakohaste reklaamide kuvamiseks teistel saitidel. Need toimivad nii, et unikaalselt tuvastavad teie brauseri ja seadme. Nende küpsiste keelamisel ei kuvata teile veebisaitidel suunatud reklaami.
Manage options Manage services Manage {vendor_count} vendors Read more about these purposes
Vaata eelistusi
{title} {title} {title}
Menüü
0 Soovide nimekiri
0 Võrdle
0 items Ostukorv